T
The Daily Insight

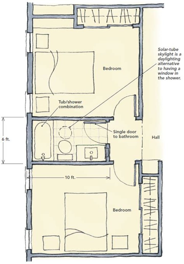
What does 3 bedrooms mean?

Author

Sarah Duran

Published Mar 11, 2026

These windowless rooms usually have fans. So, coming back to your question: a 3 bedroom apartment is a home that has a minimum of three rooms and each room has at least one WINDOW, thus qualifying the space as bedroom.

What does 3 2 2 mean in a house?

3-2-2. 3 bedroom, 2 bath, 2 car garage. Community » Housing & Amenities.

What is a 3 2 house?

No other home type says Americana as much as the 3:2 home, called that, probably by your real estate agent, because it has three bedrooms and two bathrooms. …

What does a 3 1 bedroom mean?

When you read a listing as having 3 + 1 baths, this means there are 3 full bathrooms, and 1 half bathroom.

Does 2-bedroom include living room?

2 rooms – This is a studio with a separate kitchen. 2½ rooms – This is a studio with a separate kitchen and alcove. This could also be a one bedroom unit with a Pullman kitchen and living room. 3 rooms – This is a one bedroom unit with a living room and a standard kitchen.

What is the meaning of 3 2?

For example,32, means 3 to the power of 2, which is the same as 3 squared (3 x 3). 43 means 4 to the power of 3 or 4 cubed, that is 4 × 4 × 4.

What does 2 2 house mean?

Let me give you an example: House Number Two: This means any house or apartment number that reduces to a TWO. Example: 11 = 1+1 = 2. Do this with any combination of numbers and discover if where you live is where you should be living. The apartment or house number you live in affects only you or those living with you.

What is a regular house?

Regular Homes A newly constructed house is regulated by local county and city building codes and must undergo multiple inspections before the home is completed. Also, a regular house is constructed on site rather than constructed at a manufacturing facility.

What is a 2 1 house?

One-Story Style House Plan. This house plan is a two-bedroom home with two full baths and a one-car carport.

What is a 95 job?

The definition of a nine to five is a normal and routine job. The term is often used to describe boring or unfulfilling jobs. An example of a nine to five might be working at a fast food restaurant just to make a paycheck if you have no interest in food. noun.

What does this 3 mean?

The Meaning of <3. <3 means “Love (heart shape)” So now you know – <3. means “Love (heart shape)” – don’t thank us. YW!

Which person can live in house #2?

The number is ideal for those who have the same birth number. Professionals such as teachers, gardeners and social workers, should prefer house number 2 for investment. Such homes are also great for entrepreneurs, scientists, computer engineers, or astrologists.

What does 2 symbolize?

Two: The symbolic meaning of number Two is kindness, balance, tact, equalization, and duality. The number Two reflects a quiet power of judgment, and the need for planning. Two beckons us to choose.

What is a house with no stairs called?

A duplex or a house that has been planned well can be a two floor house. Go duplexes are only called duplexes if they exist within an apartment. The term duplexes is not used for bungalows.

What is a 3 story house called?

A townhome is like a row home sharing one or two walls. They are usually 2 or 3 stories tall.