T
The Daily Insight

Can a home builder back out of a contract?

Author

Emma Jordan

Published Mar 19, 2026

Yes, a home builder can cancel a contract if site plans and permits to do not get approved, or if the builder believes there is no reasonable timeline for the home to get built.

What happens if Builder doesn’t finish job?

If you haven’t paid over and the work up to this point has been of a good standard and on time, then a good option is to try mediation where you can negotiate and resolve the issue without incurring legal costs. Give the builder notice of 7 or 14 days to come back and finish the work.

Can builder raise price after contract signed?

Even if a construction contract contains a properly drafted force majeure clause, the contractor can still be responsible for increased material costs if the event or events resulting in the price increases were within its control. Second, you cannot cause the materials to increase in price.

What happens if my builder goes bust?

If the builder becomes insolvent, the company’s liquidator may be able to sell the contract on to another builder or the liquidator can disclaim or revoke the contract.

Are home builders losing money?

Despite a historic shortage of homes for sale, homebuilders are actually slowing production, handcuffed by skyrocketing commodity prices and shortages of land and skilled labor. Single-family housing starts dropped more than 13% in April compared with March, the U.S. Census reported Tuesday.

How do I sue a builder for poor workmanship?

How to claim

  1. Contact the tradesman. In the first instance you have to give the builder or tradesman the opportunity to put right any damages.
  2. Agree terms and fix deadlines.
  3. Consumer Ombudsman and Small Claims Court.

How do I cancel a contract with a builder?

You can terminate a contract when you and the other party agree to. This can be either an express agreement or an implied agreement. Although you can expressly terminate an agreement verbally, it is recommended to do so in writing. Any implied agreement to terminate must be clear through the parties’ conduct.

Is a builder deposit refundable?

Builder Deposits – BEWARE. Did you know that most of the time any deposit you pay to a builder will be non-refundable. This means upon signing a Preliminary agreement or a pre-contract document and handing over a deposit usually in the vicinity of $1500 – $2000 and you do not proceed with the home for whatever reason.

How do I get my money back from a builder?

Definitely you can recover your money back with interest from the builder from the date of your payment till realization. As a first step you need to issue him a legal notice through your advocate and thereafter it is advised to approach the consumer forum for claiming compensation.

Can you get out of a HIA contract?

Under the HIA NSW New Dwellings or Renovations and Additions contracts you must commence building works within 20 working days after the day that: If an owner does not fulfil their obligations by the anticipated start date, clause 4.2 provides that you may end the contract.

Can you cancel a contract if the price increases?

If the price has gone up Your provider has to give you 30 days’ notice if they’re putting up the price of your contract. You have the legal right to cancel the contract within those 30 days without having to pay a fee. Contact the company and say you’re cancelling within the allowed 30 days’ notice of a price increase.

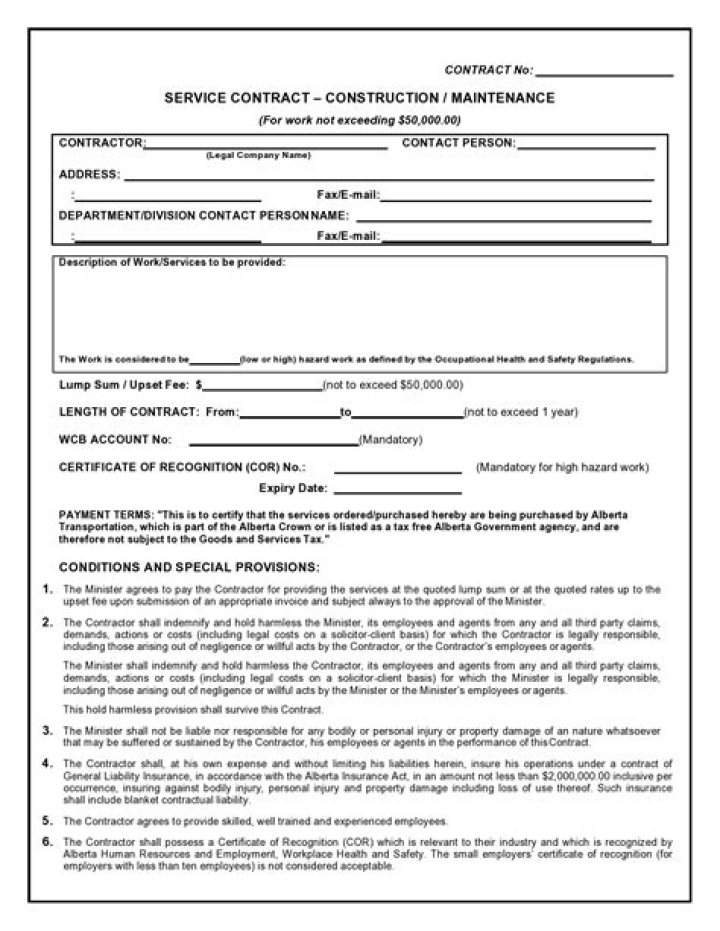
What should be in a builders contract?

Standard construction contracts should have the following information and clauses: Name of contractor and contact information. Include the contractor’s license number along with phone number, email address, and company address. Name of homeowner and contact information.

Can a buyer cancel a contract without the builder knowing?

The buyer called the builder’s representative and said they wanted to cancel the contract, then stopped payment on the check they had written to the builder without the agents knowledge. Was this a legitimate way to cancel the contract? I’m not an attorney, so my response is based on my understanding of the standard new home builder contract.

When to terminate a building and construction contract?

Key Takeaways. There are different ways that you can terminate a building and construction contract. You can terminate a contract under the law either: by agreement; after a fundamental or sufficiently serious breach of the contract; or. where there has been a repudiation of the contract.

Can a construction contract be canceled for any reason?

For instance, it may state that the contract can be canceled as a result of faulty workmanship, excessive delays or otherwise not meeting the expectations of the other party. Moreover, most contracts define precisely how they can be terminated.

When to breach a contract with a home builder?

1. Loan Contingency – The buyer has five days to submit full loan application. If they do not, the buyer has breached the contract. 2.